Exacad CL

Exacad CL – Ingeniería Estructural

Mejore productividad, eficiencia y exactitud.

Exacad CL: Tecnología para maximizar Eficiencia

Exacad CL
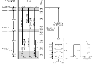
Es una potente herramienta de procesamiento y analítica de datos que permite diseñar vigas, columnas y muros de concreto reforzado a luz de los códigos de diseño sismo resistente NSR-10 y ACI-318. Asimismo, permite dibujar el despiece automáticamente por medio de la generación de archivos DXF con amplias opciones de personalización.

Vea nuestra presentación oficial

Características Potentes

Compatibilidad
Se integra fácilmente a herramientas como: Eng Solutions RCB, Midas Gen y Etabs versiones 9 en adelante.
Interfaz gráfica
Contamos con un diseño intuitivo y adaptable a cualquier tipo de pantalla para maximizar el área de diseño.
Gráficas únicas
Interpretación de resultados, optimizando el diseño de los elementos e incremento en el análisis estructural por parte del ingeniero.
Geometría sin límites
Interpreta y diseña vigas con cambios de sección notables, columnas de sección circular, rectangular, huecas, entre otras.
Despiece Claro
Algoritmos especializados permiten lograr despieces sin congestión de refuerzo o evitar barras superpuestas durante el diseño y/o barras sin ganchos suplementarios que las amarren.
Agrupación de elementos
Optimiza el proceso de diseño, agrupa elementos de acuerdo a su geometría, refuerzo longitudinal y trasversal.
Alto Detalle
Distribución de concretos y secciones en toda la longitud del elemento, cotas reales que indican medidas de traslapos, longitudes entre apoyos y ejes y generación de cortes transversales que permiten conocer la posición real del refuerzo longitudinal.
Microsoft Excel
Potencializa tus diseños con Excel, comparte datos de geometría, solicitaciones o refuerzo y lleva tus diseños a un siguiente nivel.
100% flexible
Personaliza las variables de dibujo a tu gusto y exporta archivos DXF con tu propio formato.
Render
Visualiza tu proyecto en una vista tridimensional, interactúa con él y recórrelo en diferentes formatos de vista.
Alertas Inteligentes
Mensajes que le avisan al usuario posibles errores detectados a la hora de leer los reportes derivados de los programas de modelación.
Cloud
Respaldo de todos los proyectos en la nube. Además con histórico de intervenciones para llevar trazabilidad.
Constructor
En la modalidad constructor podrás visualizar la información más relevante de los elementos estructurales, además de exportar los refuerzos en formato .dli para realizar los pedidos a las empresas figuradoras

Actions Screens Vigas, Columnas y Muros

Módulos & Funcionalidades

Vigas con funciones únicas en el mercado.

Este módulo con su última actualización sus funciones son únicas en el mercado.
Diagramas de momento curvatura para cualquier punto del elemento
Diseño de concreto reforzado a flexión con secciones doblemente reforzadas
Verificación de deflexiones instantaneas y a largo plazo
Verificación de cuantías balanceadas y de congestión de refuerzo
Verificación de cortante por capacidad de los elementos (cortante plástico)
Generación de archivos en formato DXF
Interoperabilidad con Excel
Compatibilidad con Exacad qT
Disposición automática de refuerzo longitudinal y transversal.
Diagramas de momento curvatura para cual punto del elemento
Detalle de refuerzo para diferentes grados de disipación de energía
Generación de cantidades
Dispone estribos automáticos según la disipación de energía deseada y en función de las cuantías volumétricas de la sección
Exporta listas en formato .dli

COLUMNAS gane tiempo y exactitud.

Este módulo con su última actualización sus funciones son únicas en el mercado.
Diagramas de momento curvatura para cualquier punto del elemento
Verificación de cortante plástico
Compatibilidad con Exacad qT
Detalle de refuerzo para DMO y DES
Generación de archivos en formato DXF
Generación de cantidades
Diseño de sección óptima a flexo compresión o flexo tracción
Cálculo de índice demanda/capacidad
Presentación de plano de falla en 2D y 3D
Generación de gráficas de momento curvatura
Exportación de datos a Microsoft Excel
Dispone traslapos acotados en el tercio medio de los tramos de columnas o en el primer tercio (según diseñador)
Dispone estribos automáticos para DMO y DES y en función de las cuantías volumétricas de la sección

MUROS con técnicas avanzadas.

La arquitectura de los algoritmos implementados son de ultima generación, lo que facilita disminuir los tiempos de procesamiento.
Cálculo de elementos de borde bajo las metodologías de esfuerzos y deformaciones
Disposición de malla como refuerzo longitudinal y/o transversal
Adición automática de refuerzo longitudinal
Verificación de requisitos normativos específicos para muros
Construcción de diagramas de interacción
Construcción de diagramas de momento curvatura
Generación de archivos DXF
Generación de reportes de diseño y cantidades
Solicita tu Licencia
Comprueba las ventajas de trabajar con Exacad. La herramienta más completa del mercado.